︎
MIAU
Studio
MIAU
Studio
About
People
Contact
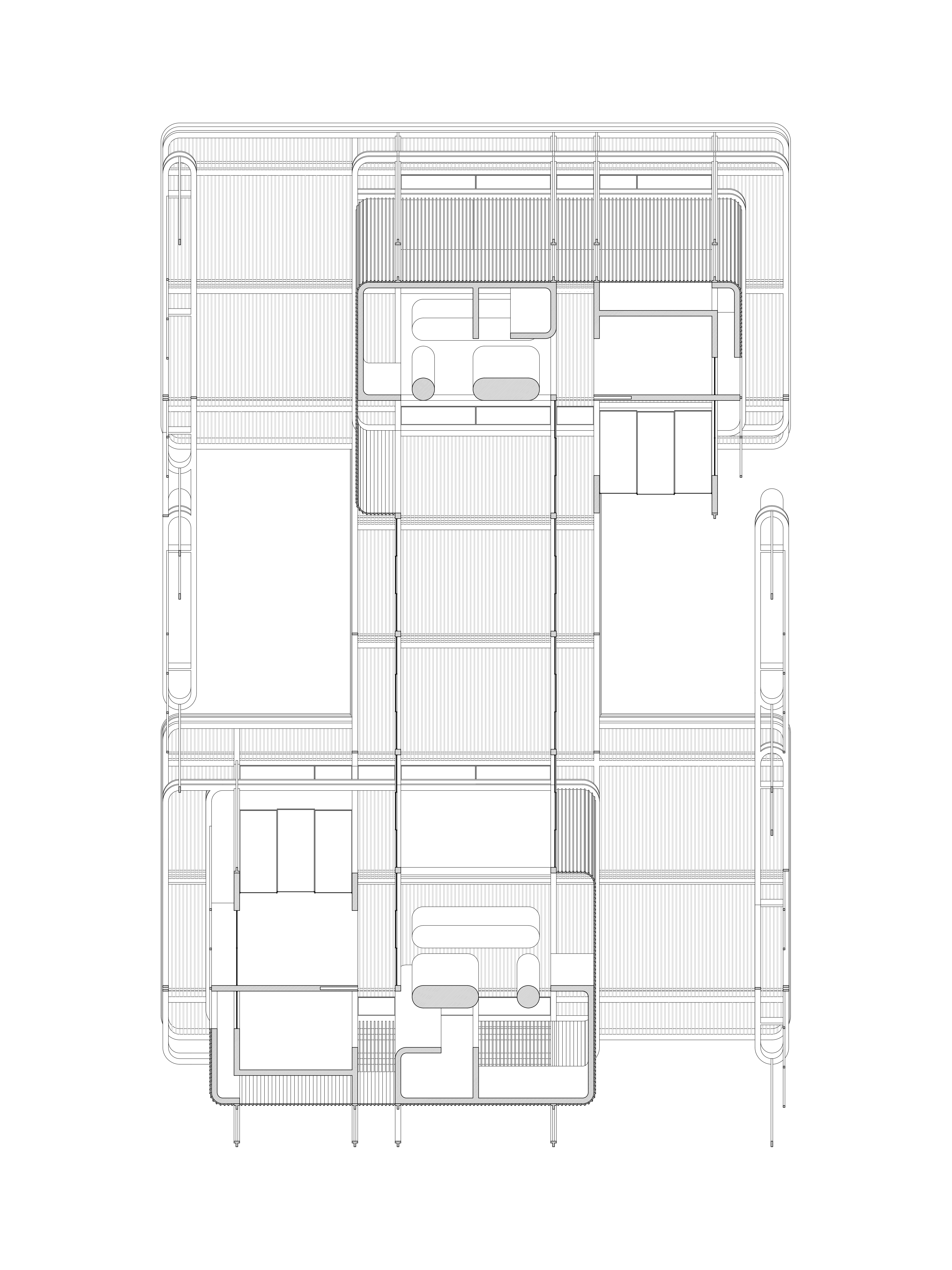
No.
Project
Year
Type
Location
005
Casa Minari
2023
Residential
Costa Rica
Credits:
Mauricio Quirós Pacheco, Lucía Ferraro
Outdoor Bathroom Studies
Floor Plan
Axonometrics